Sommaire Exécutif

Prix demandé

4 625 000 $

Superficie (PI2)

346 103

Constructible (PI2)

Unités

$ / PI2

13,36 $

$ / PI2 constructible

$ / Unité

Type d'immeuble

Station-Service et Projet de Mini-Entrepôts

Avantages du site

  • Station-service en opération générant d’excellents revenus. Sa localisation stratégique et ses installations optimisées en font un point de ravitaillement privilégié pour les bateaux de plaisance, roulottes et autres véhicules récréatifs.
  • Zonage pour un projet de mini-entrepôts déjà approuvé par la municipalité sur la portion excédentaire du terrain.
  • Terrain prêt à construire : défriché et remblayé, avec plans de permis pour la phase 1 du projet de mini-entrepôts remis à l’acheteur.
  • Excellente visibilité sur la Route 117.

Accès au Data Room

Les descriptions, spécifications et projections financières affichées sur cette page et fournies dans le data room sont à titre d'information seulement et ne doivent pas être considérées comme étant officielles. Les renseignements proviennent de sources externes ainsi que de nos propres analyses, pour lesquelles nous ne pouvons garantir l’exactitude. Il est de la responsabilité de l’acheteur de valider l'information et de s’en déclarer satisfait ou insatisfait lors de la vérification diligente suivant l'acceptation d'une promesse d’achat.


Détails de l'inscription

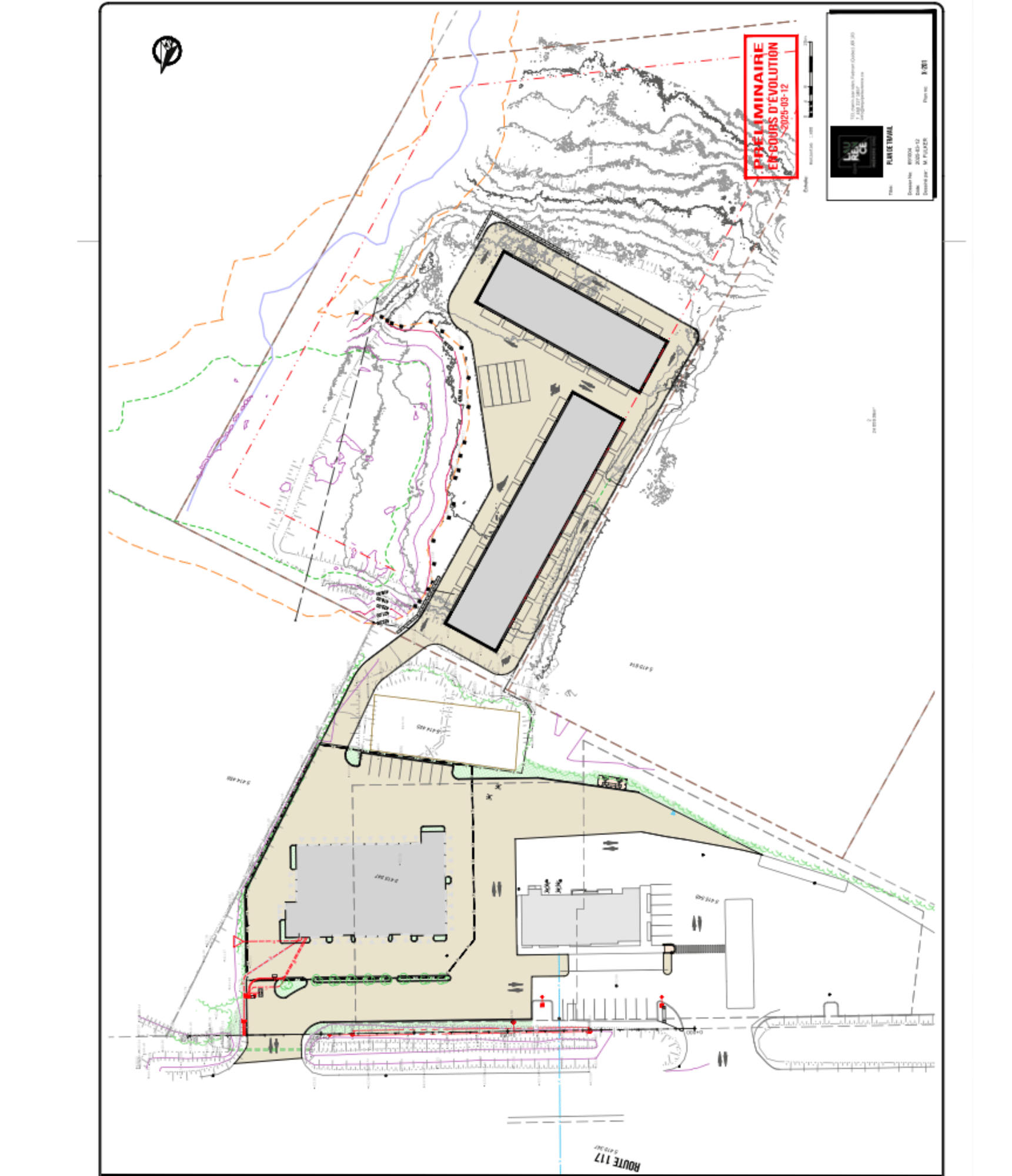
1470 Route 117
Station-Service (Bâtiment existant) - Dépanneur + projet mini-entrepôt Phase 1A

1470 Route 117 - Mont-Blanc - Vue 3

Lot
5 415 548

Superficie du Lot
50 210 pi²

Année de Construction
1979

Superficie Locative
2190 pi²

Nombre de Locataires
1 (50% loué)

Type de Bail
Triple Net

NOI Potentiel
196 964$
35,23 $/pi² 

Projet de développement - Mini-Entrepôt - Phase 1
À construire - Mini-Entrepôt en front de la Route 117

Phase 1

Lot
Opération cadastrale à réaliser

Superficie du Lot
±80 000 pi²

Étape de réalisation
Prêt pour demande de permis.

 

Superficie Brute
± 22 400 pi²

Superficie Locative
± 16 600 pi²

Revenus annuel bruts projetés
331 000 $/an

Projet de développement - Mini-Entrepôt - Phase 2

À construire - Mini-Entrepôt en arrière lot

Phase 2

Lot
6 620 640

Superficie du Lot
188 018 pi²

Étape de réalisation
Terrain prêt. Faire la mise en plan

Superficie Brute
± 19 750 pi²

Superficie Locative
± 19 750 pi²

Revenus annuel bruts projetés
395 000 $/an




Prochaines étapes du projet

(SOUS TOUTES RÉSERVES, IL IMPORTE À L’ACHETEUR DE FAIRE LES VÉRIFICATIONS APPROPRIÉES)

Déposer la demande de permis pour construction de la phase 1 à la municipalité
Construire la Phase 1 et débuter la location
Réaliser le développement de la phase 2 du projet de mini-entrepôts

Points d’intérêt

À proximité de la propriété

Pour avancer

Étapes
Accéder à la salle de données virtuelle et prendre connaissance de la documentation
Contacter les courtiers pour toute question
Déposer une offre d’achat
Courtier
Josua St-Pierre Labbé

Josua St-Pierre Labbé

Courtier Immobilier Commercial
Ellipse 141
(514) 966-2864
Ellipse 141
josua.spl@landerz.ca
Planifier un appel
Yannick Therrien

Yannick Therrien

Courtier Immobilier Commercial
Ellipse 141
(514) 506-5623
Ellipse 141
yannick@landerz.ca
Planifier un appel

Termes et conditions

Les acquéreurs éventuels (le(s) « Acquéreur(s) ») sont fortement invités à procéder à leurs propres examen et inspection de la Propriété et des renseignements y afférents, et à se fier à cet examen et à cette inspection, et non à cette Notice d’offre confidentielle ou à tout autre renseignement ou document contenu aux présentes ou autrement fourni. La présente Notice d’offre confidentielle est fournie sous réserve de toute vente ou location antérieure, et est sujette aux modifications de prix ou de modalités et autres changements relatifs aux documents, aux énoncés et aux renseignements contenus aux présentes ou relativement à la Propriété, et elle peut être retirée en tout temps, le tout sans avis ni aucune responsabilité, quels qu’ils soient.

En aucun cas, la livraison ou la réception de la présente Notice d’offre confidentielle ne doit être considérée comme ayant créé quelque obligation légale que ce soit concernant la conclusion de toute transaction relativement à la Propriété, et seule une entente définitive, signée par toutes les parties, aura pour effet de créer une obligation contraignante de conclure une transaction.

Les renseignements contenus dans la Notice d’offre confidentielle sont fournis sur une base confidentielle dans le seul et unique but de permettre à des acquéreurs éventuels d’évaluer leur intérêt à poursuivre de plus amples discussions à l’égard d’une possible transaction pour l’acquisition de la propriété en question (la « Propriété »).

Les renseignements contenus aux présentes ne peuvent, en aucun cas, être photocopiés ou divulgués à quelque tiers que ce soit, en totalité ou en partie, et ne peuvent être utilisés à d’autres fins. Dans l’éventualité où le récipiendaire de la Notice d’offre confidentielle ne désire pas poursuivre les discussions en vue d’une transaction, la présente Notice d’offre confidentielle doit être retournée à Landerz Agence Immobilière inc. (« Landerz » ou le « Conseiller »).

Ni le Vendeur, ni Landerz, ni aucun de leurs dirigeants, administrateurs, employés ou mandataires, n’assume aucune responsabilité et ne seront pas considérés avoir fait quelque représentation ou garantie que ce soit, explicitement ou implicitement, par effet de la loi ou autrement, à l’égard de la Propriété, de cette Notice d’offre confidentielle ou de quelque renseignement ou énoncé que ce soit (y compris les états financiers et prévisions financières) contenus aux présentes ou s’y rapportant, y compris l’exactitude ou au caractère exhaustif de ces renseignements ou de ces énoncés, ou quant à l’état, la qualité ou la conformité de la Propriété. De tels renseignements et énoncés proviennent, dans bien des cas, de sources externes, n’ont pas été testés ou vérifiés, et peuvent contenir des erreurs ou des omissions.

Les prévisions, notamment, sont fondées sur diverses hypothèses et analyses subjectives, quant auxquelles aucune garantie ou assurance ne peut être donnée. Sans restreindre la généralité de ce qui précède, dans l’éventualité où cette Notice d’offre confidentielle contenait des renseignements relatifs à l’amiante 09 ou à toute autre matière dangereuse ou toxique, concernant la Propriété, de tels renseignements ne devront aucunement être interprétés comme une garantie ou une déclaration, quelles qu’elles soient, explicitement ou implicitement, par effet de la loi ou autrement, et par quelque partie que ce soit, quant à l’existence, l’absence ou la nature de telles matières, à l’intérieur, sous ou autour de la Propriété.