Sommaire Exécutif

Prix demandé

1 290 000 $

Superficie (PI2)

7 891

Constructible (PI2)

16 300

Unités

13

$ / PI2

163 $

$ / PI2 constructible

79 $

$ / Unité

99 230 $

Type de projet

Résidentiel

Avantages du site

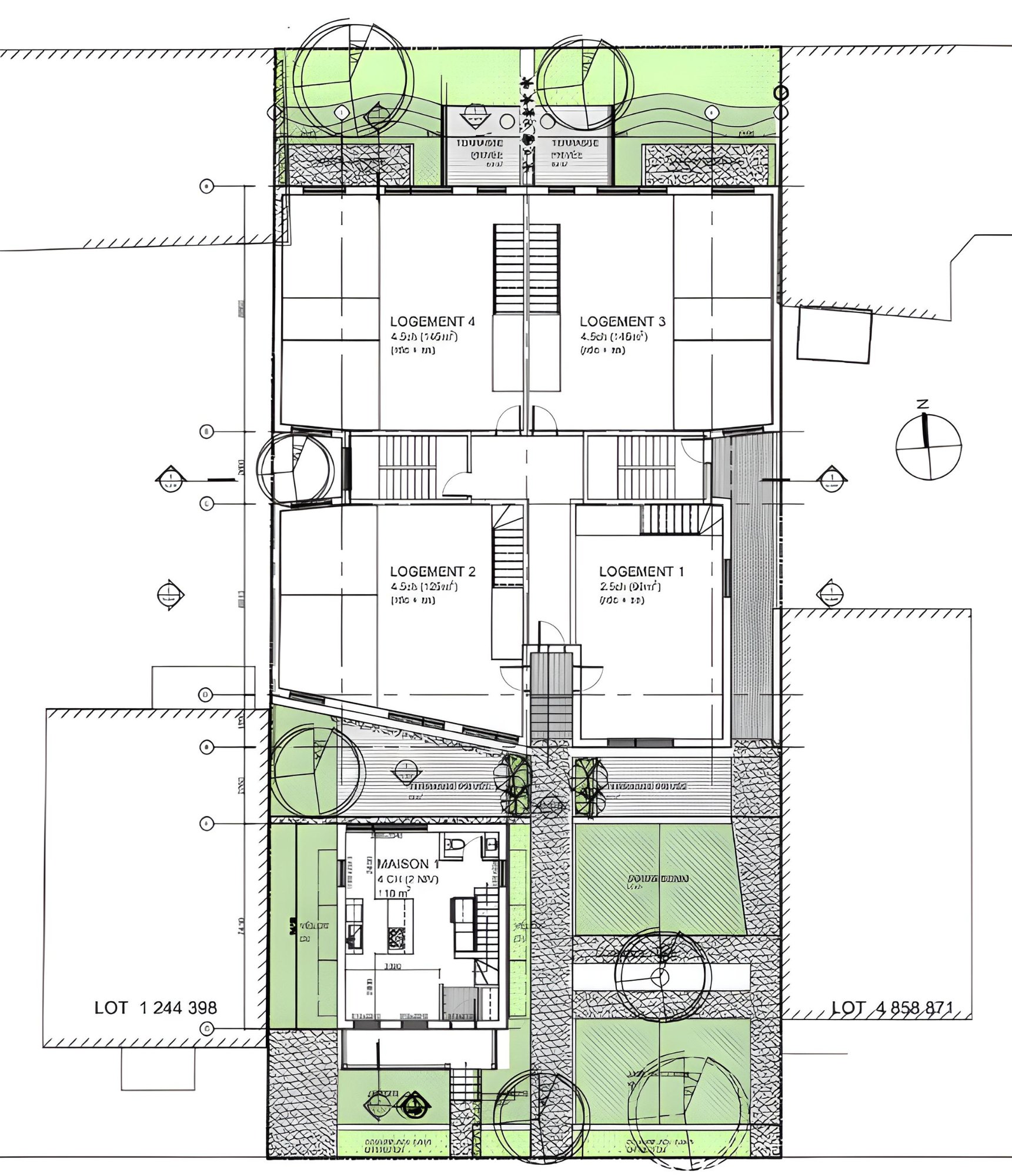
  • Approbation du CCU pour un projet comprenant 12 logements et une maison à étages.
  • Unités spacieuses avec une superficie moyenne de plus de 1 000 pi².
  • Emplacement stratégique avec accès immédiat à l’autoroute 15.

1871 rue Galt - Projet Potentiel

Projet potentiel

  • Immeuble résidentiel de 3 étages avec demi-sous-sol comprenant 12 logements.
  • Reconstruction d’une maison en façade avant du terrain.

Accès au Data Room

Les descriptions, spécifications et projections financières affichées sur cette page et fournies dans le data room sont à titre d'information seulement et ne doivent pas être considérées comme étant officielles. Les renseignements proviennent de sources externes ainsi que de nos propres analyses, pour lesquelles nous ne pouvons garantir l’exactitude. Il est de la responsabilité de l’acheteur de valider l'information et de s’en déclarer satisfait ou insatisfait lors de la vérification diligente suivant l'acceptation d'une promesse d’achat.

Afin de recevoir le lien d’accès au data room, veuillez signer le NDA.

Prochaines étapes du projet

(SOUS TOUTES RÉSERVES, IL IMPORTE À L’ACHETEUR DE FAIRE LES VÉRIFICATIONS APPROPRIÉES)

Approbation du CCU
Préparation des plans professionnels
Demande de permis

Points d’intérêt

À proximité de la propriété

Pour avancer

Étapes
Accéder à la salle de données virtuelle et prendre connaissance de la documentation
Contacter le courtier pour toute question
Déposer une offre d’achat
Courtier
Léopold Guillaume

Léopold Guillaume

Courtier Immobilier
Ellipse 141
(438) 459-2652
Ellipse 141
leopold@landerz.ca
Planifier un appel

Termes et conditions

Les acquéreurs éventuels (le(s) « Acquéreur(s) ») sont fortement invités à procéder à leurs propres examen et inspection de la Propriété et des renseignements y afférents, et à se fier à cet examen et à cette inspection, et non à cette Notice d’offre confidentielle ou à tout autre renseignement ou document contenu aux présentes ou autrement fourni. La présente Notice d’offre confidentielle est fournie sous réserve de toute vente ou location antérieure, et est sujette aux modifications de prix ou de modalités et autres changements relatifs aux documents, aux énoncés et aux renseignements contenus aux présentes ou relativement à la Propriété, et elle peut être retirée en tout temps, le tout sans avis ni aucune responsabilité, quels qu’ils soient.

En aucun cas, la livraison ou la réception de la présente Notice d’offre confidentielle ne doit être considérée comme ayant créé quelque obligation légale que ce soit concernant la conclusion de toute transaction relativement à la Propriété, et seule une entente définitive, signée par toutes les parties, aura pour effet de créer une obligation contraignante de conclure une transaction.

Les renseignements contenus dans la Notice d’offre confidentielle sont fournis sur une base confidentielle dans le seul et unique but de permettre à des acquéreurs éventuels d’évaluer leur intérêt à poursuivre de plus amples discussions à l’égard d’une possible transaction pour l’acquisition de la propriété en question (la « Propriété »).

Les renseignements contenus aux présentes ne peuvent, en aucun cas, être photocopiés ou divulgués à quelque tiers que ce soit, en totalité ou en partie, et ne peuvent être utilisés à d’autres fins. Dans l’éventualité où le récipiendaire de la Notice d’offre confidentielle ne désire pas poursuivre les discussions en vue d’une transaction, la présente Notice d’offre confidentielle doit être retournée à Landerz Agence Immobilière inc. (« Landerz » ou le « Conseiller »).

Ni le Vendeur, ni Landerz, ni aucun de leurs dirigeants, administrateurs, employés ou mandataires, n’assume aucune responsabilité et ne seront pas considérés avoir fait quelque représentation ou garantie que ce soit, explicitement ou implicitement, par effet de la loi ou autrement, à l’égard de la Propriété, de cette Notice d’offre confidentielle ou de quelque renseignement ou énoncé que ce soit (y compris les états financiers et prévisions financières) contenus aux présentes ou s’y rapportant, y compris l’exactitude ou au caractère exhaustif de ces renseignements ou de ces énoncés, ou quant à l’état, la qualité ou la conformité de la Propriété. De tels renseignements et énoncés proviennent, dans bien des cas, de sources externes, n’ont pas été testés ou vérifiés, et peuvent contenir des erreurs ou des omissions.

Les prévisions, notamment, sont fondées sur diverses hypothèses et analyses subjectives, quant auxquelles aucune garantie ou assurance ne peut être donnée. Sans restreindre la généralité de ce qui précède, dans l’éventualité où cette Notice d’offre confidentielle contenait des renseignements relatifs à l’amiante 09 ou à toute autre matière dangereuse ou toxique, concernant la Propriété, de tels renseignements ne devront aucunement être interprétés comme une garantie ou une déclaration, quelles qu’elles soient, explicitement ou implicitement, par effet de la loi ou autrement, et par quelque partie que ce soit, quant à l’existence, l’absence ou la nature de telles matières, à l’intérieur, sous ou autour de la Propriété.